Wybór odpowiedniego fundamentu pod podnośnik dwukolumnowy jest kluczowy dla zapewnienia jego stabilności i bezpieczeństwa. Fundament musi spełniać rygorystyczne wymagania techniczne, aby mógł właściwie wspierać ciężar podnośnika oraz zapewniać jego prawidłowe działanie. W artykule omówimy, jakie materiały i wymiary są niezbędne do budowy fundamentu, a także przedstawimy techniki konstrukcyjne oraz typowe błędy, które mogą prowadzić do poważnych problemów eksploatacyjnych.
Właściwe przygotowanie fundamentu nie tylko wpływa na trwałość całej konstrukcji, ale również minimalizuje ryzyko wystąpienia uszkodzeń w przyszłości. Zastosowanie wysokiej jakości materiałów, takich jak beton o odpowiedniej klasie, oraz precyzyjne wykonanie fundamentu są kluczowe. W dalszej części artykułu znajdziesz szczegółowe informacje na temat wymagań i technik budowy, które pomogą Ci uniknąć najczęstszych błędów.
Najistotniejsze informacje:- Do budowy fundamentu pod podnośnik dwukolumnowy zaleca się użycie betonu o klasie co najmniej B25, a dla większej wytrzymałości B30.
- Minimalne wymiary fundamentu to 4000 mm długości i 1000 mm szerokości, z zaleceniem zwiększenia tych wymiarów o 20% dla większych modeli.
- Grubość fundamentu powinna wynosić co najmniej 25 cm, a w niektórych przypadkach nawet 30 cm.
- Fundament musi być idealnie poziomy, co wymaga starannego przygotowania podłoża i użycia narzędzi do wyrównania.
- Kluczowym elementem fundamentu jest zbrojenie, które zwiększa jego nośność i stabilność.
- Nieprawidłowe wykonanie fundamentu może prowadzić do poważnych problemów eksploatacyjnych, w tym konieczności jego rozbiórki.
Wymagania dotyczące fundamentu pod podnośnik dwukolumnowy dla stabilności
Aby zapewnić stabilność i bezpieczeństwo podnośnika dwukolumnowego, fundament musi spełniać określone wymagania techniczne. Najlepszym materiałem do budowy fundamentu jest beton o klasie co najmniej B25, który gwarantuje odpowiednią nośność. Dla większej wytrzymałości, zaleca się użycie betonu klasy B30, co znacząco podnosi trwałość konstrukcji. Grubość fundamentu nie powinna być mniejsza niż 25 cm, a w niektórych przypadkach zaleca się grubość 30 cm, co wpływa na jego funkcjonalność.
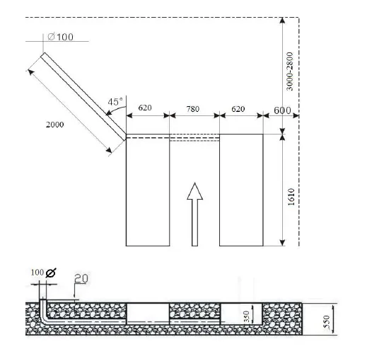
Wymiary fundamentu są kluczowe dla jego efektywności. Minimalne wymiary płyty fundamentowej powinny wynosić 4000 mm długości na 1000 mm szerokości. Dla większych modeli podnośników, warto zwiększyć te wymiary o około 20%. W przypadku standardowych podnośników, zalecane wymiary to 4000 mm x 1500 mm x 300 mm. Fundament musi być idealnie poziomy, co wymaga starannego przygotowania podłoża oraz użycia narzędzi takich jak poziomica czy laser do wyrównania powierzchni przed wylaniem betonu.Jakie materiały są najlepsze do budowy fundamentu?
Podczas budowy fundamentu pod podnośnik dwukolumnowy, kluczowe jest zastosowanie odpowiednich materiałów. Najczęściej używanym materiałem jest beton, który powinien być wysokiej jakości. Beton B25 oraz beton B30 to najlepsze opcje, ponieważ zapewniają odpowiednią nośność i trwałość. Oprócz betonu, ważne jest także zastosowanie zbrojenia, które zwiększa stabilność fundamentu. Zaleca się użycie prętów żebrowanych o średnicy 12 mm, układanych w formie siatki górnej i dolnej, co pozwala na lepsze rozłożenie obciążeń.
- Beton B25 – odpowiedni do standardowych obciążeń, zapewnia stabilność.
- Beton B30 – zalecany dla większych podnośników, oferuje wyższą wytrzymałość.
- Pręty żebrowane o średnicy 12 mm – kluczowe dla zbrojenia fundamentu.
| Klasa betonu | Nośność (MPa) | Przeznaczenie |
| B25 | 25 | Standardowe fundamenty |
| B30 | 30 | Fundamenty dla większych obciążeń |
Wymiary fundamentu, które zapewnią bezpieczeństwo podnośnika
Wymiary fundamentu pod podnośnik dwukolumnowy mają kluczowe znaczenie dla jego stabilności i bezpieczeństwa. Minimalne wymiary płyty fundamentowej powinny wynosić 4000 mm długości na 1000 mm szerokości. Dla większych modeli podnośników, zaleca się zwiększenie tych wymiarów o około 20%, co zapewnia lepsze rozłożenie obciążenia. W przypadku standardowych podnośników, rekomendowane wymiary to 4000 mm x 1500 mm x 300 mm, co gwarantuje odpowiednią nośność i trwałość.
Grubość fundamentu również odgrywa istotną rolę w zapewnieniu stabilności. Nie powinna być mniejsza niż 25 cm, a w niektórych przypadkach, zwłaszcza dla większych obciążeń, zaleca się grubość 30 cm. Ważne jest, aby fundament był idealnie poziomy, co wymaga starannego przygotowania podłoża oraz użycia narzędzi takich jak poziomica czy laser do wyrównania powierzchni przed wylaniem betonu. Właściwe wymiary i wykonanie fundamentu są kluczowe dla długotrwałego i bezpiecznego użytkowania podnośnika.
Czytaj więcej: Ile kosztuje fundament pod dom? Sprawdź, co wpływa na ceny i oszczędź
Techniki budowy fundamentu pod podnośnik dwukolumnowy dla trwałości
Budowa fundamentu pod podnośnik dwukolumnowy wymaga staranności i precyzji. Proces ten można podzielić na kilka kluczowych etapów. Pierwszym krokiem jest dokładne przygotowanie wykopu, który powinien być zgodny z wcześniej ustalonymi wymiarami. Należy usunąć wszelkie nierówności i przeszkody, aby zapewnić stabilne podłoże.
Następnie, po przygotowaniu wykopu, należy ułożyć warstwę podkładową z piasku o grubości 5-10 cm. Ta warstwa musi być odpowiednio zagęszczona, aby zapobiec osiadaniu fundamentu. Kolejnym krokiem jest wykonanie szalunku oraz zbrojenia, które zwiększa nośność fundamentu. Pręty żebrowane o średnicy 12 mm powinny być układane w formie siatki górnej i dolnej, co zapewnia odpowiednią stabilność.
Ostatnim etapem jest zabetonowanie fundamentu. Warto wykonać to w jednym cyklu roboczym, używając wibratora do zagęszczenia mieszanki. Po wylaniu betonu, należy go odpowiednio pielęgnować przez co najmniej 7 dni, chroniąc przed wysychaniem i przemarzaniem. Beton osiąga pełną wytrzymałość po 28 dniach, dlatego tak ważne jest, aby nie przyspieszać tego procesu.
- Przygotowanie wykopu zgodnie z ustalonymi wymiarami.
- Ułożenie warstwy podkładowej z piasku o grubości 5-10 cm.
- Wykonanie szalunku i zbrojenia z prętów żebrowanych.
- Zabetonowanie fundamentu w jednym cyklu roboczym.
- Pielęgnacja betonu przez co najmniej 7 dni.
Krok po kroku: jak przygotować fundament podnośnika?
Przygotowanie fundamentu pod podnośnik dwukolumnowy to kluczowy etap, który wymaga staranności i precyzji. Pierwszym krokiem jest wykopanie odpowiedniego dołu zgodnie z wcześniej ustalonymi wymiarami. Należy upewnić się, że dno wykopu jest równe i wolne od wszelkich przeszkód, które mogłyby wpływać na stabilność fundamentu. Po wykopaniu dołu, konieczne jest wyrównanie podłoża, co można osiągnąć przy pomocy narzędzi takich jak poziomica lub laser do wyrównania.
Następnie, warto usunąć wszelkie nierówności oraz kamienie, które mogą osłabić fundament. Po przygotowaniu podłoża, można przystąpić do ułożenia warstwy podkładowej, która zazwyczaj składa się z piasku o grubości 5-10 cm. Ta warstwa powinna być odpowiednio zagęszczona, aby zapobiec późniejszemu osiadaniu fundamentu. Właściwe przygotowanie podłoża jest kluczowe dla zapewnienia stabilności i trwałości całej konstrukcji.
Zastosowanie zbrojenia w fundamentach dla lepszej nośności
Zbrojenie fundamentu odgrywa istotną rolę w zapewnieniu jego stabilności i nośności. Najczęściej stosowane są pręty żebrowane o średnicy 12 mm, które układa się w formie siatki górnej i dolnej. Zbrojenie to pozwala na lepsze rozłożenie obciążeń i zwiększa odporność fundamentu na pęknięcia oraz deformacje. Właściwe zbrojenie jest kluczowe, zwłaszcza w miejscach, gdzie występują duże obciążenia, jak w przypadku podnośników dwukolumnowych.
Oprócz prętów żebrowanych, ważne jest również zachowanie odpowiedniej otuliny betonu, wynoszącej co najmniej 5 cm od dolnej krawędzi fundamentu. Takie podejście zapewnia ochronę zbrojenia przed korozją oraz wpływem czynników atmosferycznych. Dobrze zaplanowane i wykonane zbrojenie fundamentu znacząco wpływa na jego długowieczność i bezpieczeństwo użytkowania.

Typowe błędy przy budowie fundamentu pod podnośnik dwukolumnowy
Podczas budowy fundamentu pod podnośnik dwukolumnowy mogą wystąpić różne błędy, które mogą poważnie wpłynąć na jego stabilność i funkcjonalność. Jednym z najczęstszych błędów jest niewłaściwe przygotowanie podłoża, co może prowadzić do osiadania fundamentu. Jeśli grunt nie jest odpowiednio zagęszczony lub nie usunięto nierówności, fundament może się deformować, co z kolei wpłynie na działanie podnośnika. Inny powszechny problem to niedostateczna grubość fundamentu, która nie spełnia wymagań dla konkretnego modelu podnośnika.
Kolejnym błędem jest niewłaściwe zbrojenie, które może prowadzić do pęknięć i osłabienia fundamentu. Zastosowanie prętów o niewłaściwej średnicy lub ich niewystarczająca ilość może skutkować brakiem odpowiedniej nośności. Ostatecznie, nieprzestrzeganie wymagań dotyczących wymiarów fundamentu, takich jak minimalne długości i szerokości, może prowadzić do problemów z równowagą podnośnika oraz jego bezpieczeństwem. Warto zwrócić uwagę na te aspekty, aby uniknąć kosztownych napraw w przyszłości.- Niewłaściwe przygotowanie podłoża – prowadzi do osiadania fundamentu.
- Niedostateczna grubość fundamentu – nie spełnia wymagań dla obciążeń.
- Niewłaściwe zbrojenie – osłabia fundament, powodując pęknięcia.
- Nieprzestrzeganie wymagań wymiarowych – wpływa na równowagę i bezpieczeństwo podnośnika.
Co może pójść nie tak przy niewłaściwej konstrukcji?
Niewłaściwa konstrukcja fundamentu pod podnośnik dwukolumnowy może prowadzić do wielu problemów. Jednym z najczęstszych jest pękanie betonu, które może wystąpić w wyniku nieodpowiedniego przygotowania podłoża lub użycia niskiej jakości materiałów. Pęknięcia te mogą prowadzić do osłabienia struktury fundamentu i w konsekwencji do niestabilności podnośnika. Innym poważnym problemem jest osiadanie fundamentu, które może być spowodowane niewłaściwym zagęszczeniem gruntu, co zagraża bezpieczeństwu użytkowania podnośnika.
Dodatkowo, niewłaściwe zbrojenie może skutkować nieodpowiednim rozłożeniem obciążeń, co prowadzi do dalszych uszkodzeń. W skrajnych przypadkach, takie błędy mogą wymagać kosztownej naprawy lub nawet rozbiórki fundamentu, co generuje dodatkowe wydatki i opóźnienia w realizacji projektu. Dlatego tak ważne jest, aby każdy etap budowy fundamentu był dokładnie przemyślany i wykonany zgodnie z obowiązującymi standardami.
Jak uniknąć kosztownych problemów przy budowie fundamentu?
Aby uniknąć kosztownych problemów podczas budowy fundamentu pod podnośnik dwukolumnowy, warto zastosować kilka sprawdzonych strategii. Po pierwsze, zawsze należy przeprowadzić dokładne badania gruntu, aby upewnić się, że jest on odpowiedni do budowy. Warto również korzystać z usług doświadczonych fachowców, którzy znają się na budowie fundamentów i mogą pomóc w uniknięciu błędów. Regularne kontrole jakości materiałów oraz technik budowlanych są również kluczowe dla zapewnienia trwałości konstrukcji.
Ważne jest także, aby stosować się do zalecanych wymiarów i grubości fundamentu, co pozwoli na lepsze rozłożenie obciążeń. Przestrzeganie norm budowlanych oraz szkolenie pracowników w zakresie technik budowy fundamentów to kolejne kroki, które mogą pomóc w uniknięciu problemów. Ostatecznie, planowanie i staranność na każdym etapie budowy są kluczowe dla sukcesu projektu.
Nowoczesne technologie w budowie fundamentów pod podnośniki
Wraz z postępem technologicznym, budowa fundamentów pod podnośniki dwukolumnowe zyskuje na efektywności dzięki zastosowaniu nowoczesnych rozwiązań. Przykładem są systemy monitorowania, które umożliwiają śledzenie stanu fundamentu w czasie rzeczywistym. Dzięki zastosowaniu czujników, można na bieżąco analizować obciążenia, drgania oraz ewentualne deformacje, co pozwala na wczesne wykrywanie problemów i podejmowanie odpowiednich działań zapobiegawczych.
Inwestycja w takie technologie nie tylko zwiększa bezpieczeństwo użytkowania podnośników, ale także pozwala na optymalizację kosztów związanych z konserwacją. Wykorzystanie dronów do inspekcji terenów budowy oraz monitorowania postępu prac również staje się coraz bardziej popularne. Drony mogą szybko ocenić stan wykopów czy zbrojenia, co przyspiesza proces budowy i minimalizuje ryzyko błędów. Zastosowanie tych innowacji w budowie fundamentów może znacząco wpłynąć na przyszłość branży budowlanej, wprowadzając nowe standardy jakości i efektywności.
